foto1
foto1
foto1
foto1
foto1
logo

Home, Wood Home

autoconstruction en bois

Visites

3794870
Aujourd'hui
Hier
Ce Mois
Mois dernier
1125
1150
22157
38919

Utilisateur

extrait du cadastre extrait du cadastre

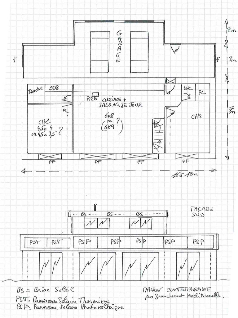
Positionnement de la maison sur le terrain, premières esquisses ...

Le compromis pour l'achat du terrain vient d'être signé, et je me lance dans mes premières réflexions.

Vu le défrichage, la position de la maison est à peu près décidée :

Je repart de mon précédent projet, donc une maison en bois, en ignorant cette fois certaines contraintes, telles que la toiture double pente.

Et je crayonne assez rapidement une esquisse :